盖房子对于每个人来说都是人生大事,也许这就是我们一辈子的家了,因此千万马虎不得。既然是一生的宅邸,外观排场大气是最基本的,同时要兼具户内功能设计的舒适性和实用性。本期我们来给大家推荐一款占地160多平的农村二层欧式豪华别墅设计施工图,喜欢的话文末提供电子版下载,自行打印后可直接用于施工。
详细参数:
建筑开间:14.00m
建筑进深:11.80m
占地面积:165.20㎡
建筑面积:256.21㎡
檐口高度:8.39米
结构形式:砖砌体结构
主体造价:40万左右
图纸格式:PDF格式
居住功能:挑空客厅、双车库、5间卧室、4卫生间、露台

正面效果图

鸟瞰效果图

侧面效果图

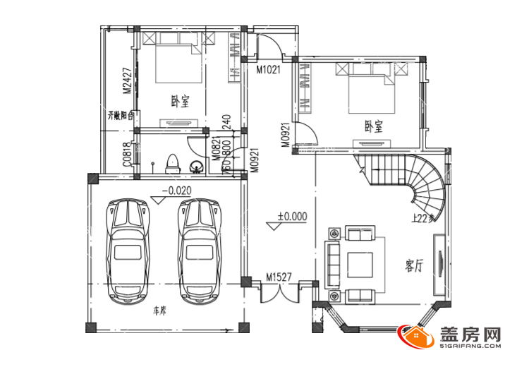
一层平面图
一层我们设计了一个开放式的双车库,这里不仅可以用来停放车辆,闲暇之余这里也可以作为一个休闲活动或用餐聚会的空间。正门入户既客厅,挑空设计,面积宽敞采光足,搭配一个旋转式楼梯格调立马提升起来了。业主把厨房餐厅射在了后院,因此一层的空间就显得极为阔绰,北面设有两间东西朝向的卧室,其中主卧带独卫和阳台。

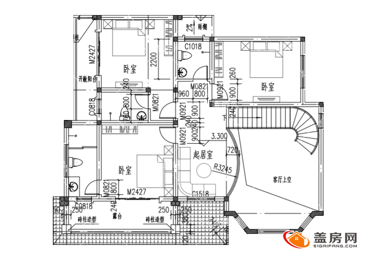
二层平面图
二层有三间卧室,其中两间都带独卫和露台,保证了每个家庭成员的生活隐私以及居住的舒适性。
图纸格式:电子版PDF格式
图纸目录:建筑图12张、结构图13张、给排水图10张、电气图12张。
