由于农村土地政策的限制,现在农村自建房的宅基地面积都有着严格的要求,大多是按照家庭人口来计算的,很多小家庭的宅基地甚至不足70平米,那么对于这种小户型如何设计才能既舒适又实用呢?这里我们来为大家推荐一款占地仅有67平方米的农村中式徽派三层带阁楼小别墅,外观古色古香,内部户型设计也是极为舒适,适合小家庭居住。喜欢的朋友可以通过文末链接下载全套施工图,可直接用来施工。
详细参数:
建筑开间:7.76米
建筑进深:8.16米
占地面积:67.20平方米
建筑面积:258.94平方米(包括阁楼)
建筑层数:3层带阁楼
结构体系:框架结构
主体造价:22万元
图纸格式:PDF格式
居住功能:客厅、餐厅、厨房、2卧室、书房、3卫生间、杂物房

正面效果图

鸟瞰效果图

背面效果图

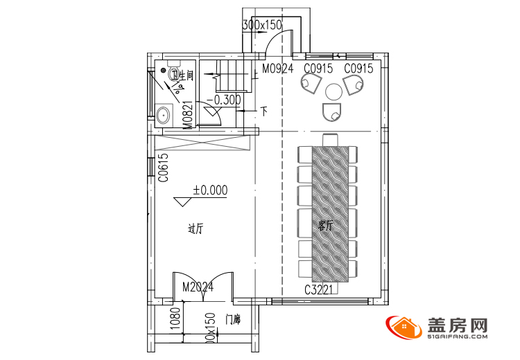
一层户型图
一层整个是一个开放式活动空间,由于占地面积非常小,我们把厨房设在二层,一层作为一个非常宽敞的家庭活动空间,对于小户型来说,这是一个极为舒适的设计理念,让我们在家里拥有开阔的空间而不觉得憋屈。西北角设有一个公卫。北面留有后门。

二层户型图
餐厨区在二层,餐厅也是非常的宽敞,足够十人以上同时进餐,就算在家里宴客摆酒也绰绰有余。南向有一间卧室,门口既是公卫,很方便。

三层户型图
三层则是一个主卧大套房,设计极为舒适,内设独卫和桑拿房,里面还有一间带露台的书房,每个空间都很宽敞。如果家里有小宝宝,把书房改成儿童房也是非常的合适,照顾起来非常方便。

阁楼平面图
通过楼梯可以直通阁楼,阁楼主要作为一个储藏空间,南向拥有明窗。当然如果把阁楼的一部分做成音乐房或活动室也是非常不错的。
图纸格式:电子版PDF格式
图纸目录:建筑图17张、结构图21张、水施图7张、电施图12张
