现在很多人都喜欢欧式别墅,但是欧式风格运用到农村自建房就需要考虑到其实用性。太过于复杂的设计不仅会带来很大的施工难度和高成本,日后的维护也是很麻烦的,弄不好过几年就会显得破旧不堪。这里我们将为大家推荐一款非常适合农村自建房的欧式三层小洋楼,既有着传统欧式的古典高贵气质,又相对简单,看起来反而显得很是大气。内部户型的设计更是注重其舒适性,让小户型彰显大格局。喜欢的朋友可以通过文末链接下载全套设计施工图,可直接用来施工,毫无障碍。
详细参数:
东西开间:11.60米
南北进深:10.90米(包括门廊)
建筑占地:108.61平方米
建筑面积:265.49平方米
建筑层数:地上3层
檐口高度:10.35米
结构形式:框架结构
土建造价:25万左右
图纸格式:PDF格式
居住功能:客厅、起居室、餐厅、厨房、5卧室、书房、3卫生间、露台

外观效果图
别墅外观设计简单大气,外立面以淡黄色外墙砖搭配奶白色真石漆,经典的二段式设计。挑空客厅配上二层高的落地窗显得尤为霸气,给人的感觉非常奢华。

一层平面图
门廊入户正对玄关,起到室内外过渡的作用。走进去是一个大客厅,挑空设计的客厅双面采光,让这个空间显得相当的敞亮,这对于小户型来说很难得。客厅与餐厅有一定的高度差,这让空间感油然而生。通过两个台阶上到餐厅,餐厅位置相对隐私,给我们的私人生活带来很大的安全感。最里面有一间老人房,门口就是公卫,很方便。

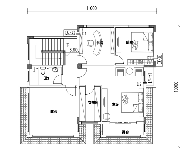
二层平面图
二层楼梯上来先是一个起居室,这里是自家人小聚休闲的地方。这层有两间卧室,南北向各有一间,公卫在中间。起居室和南向的卧室均可通阳台。

三层平面图
三层是主人一家的起居空间,南向是一个大主人房,面积宽敞,内设步入式衣帽间,带私属露台。北向是一间儿童房,带有一个独立的书房,孩子可以在这里安静的学习功课。
图纸格式:电子版PDF格式
图纸目录:建筑图18张、结构图20张、给排水图9张、电气图15张。
