在农村有很多四世同堂的大家庭,祖祖辈辈居住在一起,这也就造成了家庭人口特别多。那这样的家庭在盖新房的时候就需要多较多的卧室和空间,怎样设计才能合理实用呢?本期我们就来给大家推荐一款农村多卧室三层欧式别墅设计图,适合大家庭居住的新农村住宅,喜欢的朋友可以通过文末链接下载全套设计图纸,可直接用于施工,毫无障碍。
详细参数:
东西开间:15.46米
南北进深:10.19米
建筑占地:163.70平方米
建筑面积:491.10平方米
建筑层数:地上三层
结构形式:砖混结构
土建造价:50万元左右
图纸格式:PDF格式
居住功能:3客厅、餐厅、厨房、13间卧室、4卫生间、阳台

右视效果图

左视效果图

一层户型图
一层正南门入户是一个很大的堂屋和客厅的空间,方方正正、采光充足。餐厅厨房采用一体式设计,相对独立、面积宽敞。一层有三间卧室,其中两间朝南一间朝北,西侧的老人房是套间设计,有步入式衣帽间和独卫,老人居住很方便。

二层户型图
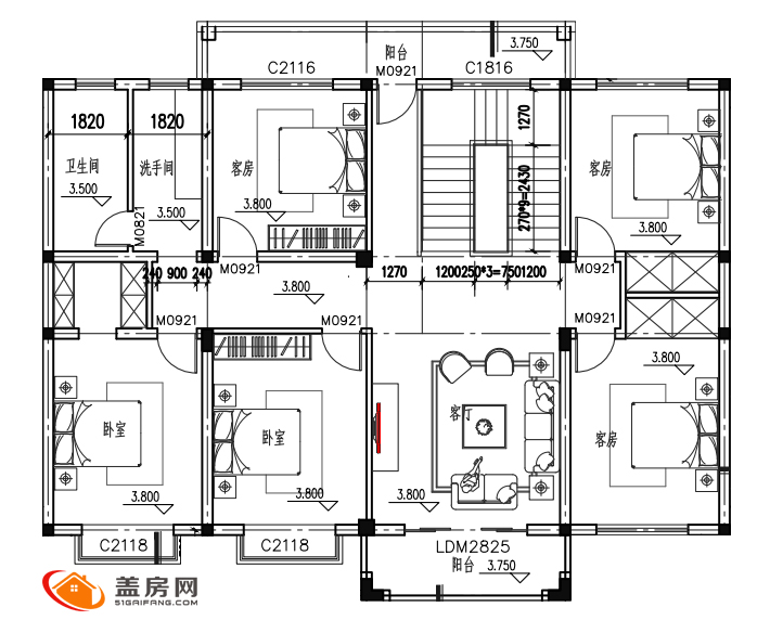
楼梯上来二层有一个供自家人休闲娱乐的客厅,前后有双阳台。这层有5间卧室,布局很规整,动线设计合理。卫生间分为洗手间和洗浴间两个部分,这样设计有效的避免了使用冲突,毕竟人口比较多。

三层户型图
三层的格局和二层是一样的,这里不做过多介绍。我们看出这栋别墅一共有13间卧室,对于一个四世同堂的大家庭来说足够居住,还可以把其中的房间灵活使用,改成书房、棋牌室或储藏室都很合适。
图纸格式:电子版PDF格式
图纸目录:建筑图12张、结构图11张、给排水图8张、电气图13张。
