在农村盖房子,有一款好的图纸是非常重要的,那什么是好图纸呢?最关键的就是要符合我们自己的审美,同时要适合自家人的生活习惯,成本预算也要控制在家庭能承受的额范围之内。因此不要盲目跟风,追求豪华,最终钱花了不少,住起来也别别扭扭的。这里我们来给大家推荐一款占地130多平方米的农村三层欧式别墅设计图,罗马柱、大露台,相当美观大气,户型也是舒适实用,喜欢的朋友可以通过文末链接下载全套施工图。
详细参数:
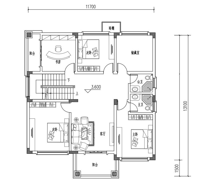
建筑开间:11.70米
建筑进深:11.60米(算门廊13.10米)
占地面积:138.67平方米
建筑面积:376.72平方米
建筑高度:至檐口10.00米 至屋顶12.20米
结构形式:框架结构
主体造价:42万左右
图纸格式:PDF格式
居住功能:2客厅、餐厅、厨房、6卧室、书房、棋牌室、健身房、多功能厅、4卫生间、储物间

正面外观效果图

背面外观效果图

一层平面图
门廊的空间较大,作为一个短暂接待和休闲小憩的空间是非常必要的。进门是个过厅,对面墙摆放神位。过厅的左侧是用于正式接待的大客厅,方方正正、双向采光,很是敞亮。餐厨区在后面,在厨房和餐厅的位置均有独立的出入口,为日常出行提供最大的方便。餐厅旁边有一个棋牌室,用餐过后在这里打打麻将聊聊天非常合适。一层的南向有一间老人房,门口就有卫生间。

二层平面图
二层是主人一家主要的生活空间,共有三间卧室,其中两个主要的卧室都是南向采光,且主卧设有独立的卫生间。除此之外北面还有一间书房和一间储藏室,书房里面带开放式阳台,很惬意。二层中间的客厅也不小,向南一直延伸至阳台,是自家人小聚休闲的地方。

三层平面图
三层有两间客房,作为备用房间以备不时之需。三层主要的功能是娱乐,有一个多功能厅和一个健身房,而且还有很大的室外面积,可以根据自家喜好打造一个露台花园,真是相当的惬意舒适。
图纸格式:电子版PDF格式
图纸目录:建筑图18张、结构图21张、给排水图8张、电气图16张。
