在农村建房,一定要选一套适合自己家庭的图纸,要根据自家人口数、生活习惯、预算开支以及审美几方面来考虑,千万不要盲目。本期我们来给大家推荐的是一款占地150平方米的农村平顶三层半带露台框架结构自建房设计图,挑空客厅,厨房朝南,舒适好看又实用,喜欢的朋友可以通过文末链接下载全套图纸。
详细参数:
建筑开间:12.26米
建筑进深:12.80米(包括门楼)
建筑占地:149.03平方米
建筑面积:482.54平方米
建筑层数:三层半
屋檐高度:15.05米
结构体系:框架结构
主体造价:45万左右
图纸格式:PDF格式
居住功能:2客厅、餐厅、厨房、8卧室、茶室、7卫生间、大露台

外观效果图
外观设计较为简单,沿袭了欧式风格的特点,但做了简化处理,降低施工难度和成本。二段式的外立面设计,以黄褐色文化石搭配白色真石漆。屋顶形式为平屋顶,较坡屋顶相比也一定程度的降低了建造成本。

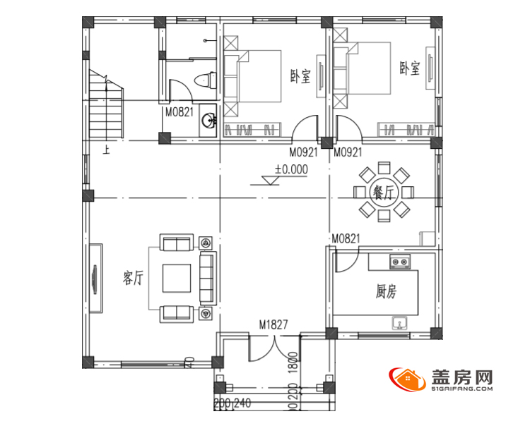
一层平面图
本案例是复式结构,客厅为中空挑高设计,进门的感觉非常大气。厨房是朝南的,这里可以说是利用率最高的空间,一天三顿饭,有个阳光厨房心情很好。餐厅紧邻厨房,东向有独立采光。北面是两间卧室和一个公卫,适合做客房、老人房或佣人间。

二层平面图
由于一层的客厅是挑空设计,因此二层的利用率并不高,主要空间只有一间套卧,内设独立书房和内卫,还是很舒适的。南向有一个开放式的茶室,作为小憩休闲的地方。

三层平面图
三层才是主要的起居空间,这里有一间套房和两间次卧。最东侧的套房带步入式衣帽间和独立卫生间,北向次卧也有内卫。

三层平面图
三层主要是两个备用房间,平常没人住,来了亲戚朋友可以暂时住在这里。这层有一半的面积是露台,是晾晒衣物被褥和户外休闲的地方。
图纸格式:电子版PDF格式
图纸目录:建筑图18张、结构图20张、水施图12张、电施图18张
